Zur Navigation wechseln Zum Inhalt wechseln Zum Footer wechseln

Großzügige DHH mit PV-Anlage, Einbauküche, 2 Bädern, großem Grundstück und Fernblick!

ImmoNr
24-191_F
Objektart
Haus
Objekttyp
Doppelhaushälfte
Vermarktungsart
Miete
PLZ
95496
Ort
Glashütten
Land
Deutschland
Wohnfläche
ca. 167 m²
Nutzfläche
ca. 17 m²
Grundstücksgröße
ca. 550 m²
Anzahl Zimmer
4
Anzahl Schlafzimmer
3
Anzahl Badezimmer
2
Anzahl sep. WC
3
Anzahl Balkone
1
Anzahl Terrassen
2
Balkon
Ja
Befeuerung
Luft/Wasser Wärmepumpe
Etagenzahl
3
Stellplätze
1 Carport, 40 € (Miete), 1 Garage, 50 € (Miete)
Terrasse
Ja
Kaltmiete
1.690,00 €

Zur Immobilie

Diese neugebaute Doppelhaushälfte (DHH) bietet Ihnen ein modernes und energieeffizientes Zuhause, das keine Wünsche offenlässt. Geplant für einen Erstbezug im Nov/Dez 2025, wird die Immobilie nach höchsten Standards erbaut und bietet sowohl Komfort als auch Nachhaltigkeit.
Das Haus entspricht dem KfW 55 Standard und erfüllt somit alle Anforderungen an eine hohe Energieeffizienz. Durch die leistungsstarke Photovoltaikanlage mit 8,8 kWp sowie ein 9,6 kW Batteriespeicher kann eine umweltfreundliche und kostensparende Stromversorgung gewährleistet werden. Dank dieser modernen Technik können Sie einen Großteil Ihres Strombedarfs selbst decken und gleichzeitig einen wichtigen Beitrag zum Umweltschutz leisten.

Im Inneren erwartet Sie eine hochwertige Ausstattung: Die Vinylböden und eleganten Fliesenbeläge sorgen nicht nur für eine ansprechende Optik, sondern auch für Langlebigkeit und Pflegeleichtigkeit. Die hohen Türen im gesamten Haus schaffen ein modernes, luftiges Raumgefühl und setzen stilvolle Akzente. In allen Räumen sind zudem elektrische Rollos verbaut, die sich komfortabel steuern lassen und für zusätzlichen Komfort und Sicherheit sorgen.

Besonders hervorzuheben ist das Badezimmer im Obergeschoss, das mit einer begehbaren Dusche ausgestattet ist und eine Oase der Entspannung darstellt. Auch das Studio im Dachgeschoss verfügt über eine begehbare Dusche und kann flexibel genutzt werden – sei es als zusätzliches Schlafzimmer oder als Arbeitszimmer.

Die hochwertige Küche mit einer großzügigen Kochinsel ist der perfekte Ort, um Ihre kulinarischen Kreationen zu verwirklichen und gesellige Abende mit Familie und Freunden zu verbringen. Dank der Wallbox können Sie Ihr E-Auto bequem zu Hause aufladen und profitieren so von einer nachhaltigen Mobilitätslösung.

Der Energieausweis wird mit Fertigstellung des Hauses erstellt.

Ausstattung:
– Massivhaus im KFW-55 Standard
– Aufdachdämmung
– Kunststofffenster mit 3-fach-Verglasung
– großzügiges Grundstück (ca. 500-600m²)
– Alu-Haustür
– hochwertige wohnliche Bodenbeläge Vinyl
– weiße, überhohe Innentüren
– elektrische Rollos im ganzen Haus
– hochwertige Steinzeugfliesen
– Glastür am Flur sowie im DG
– Handtuch-HK in beiden Bädern
– Fußbodenheizung im ganzen Haus
– schnelles Internet dank Glasfaser
– moderne Zweiholmtreppe mit 40mm Buchenstufen
– PV-Anlage ca. 8,8 kWp mit Speicher 9,6 KW (Leistung PV-Anlage ca. 9.000 kW/Jahr)
– Wallbox bereits vorhanden
– vermieterseitig inkl. Einbauküche mit Kochinsel
– angelegte Außenanlagen

Miete:
Kaltmiete: 1.690 EUR/mtl.
Garage: 50 EUR/mtl.
Carport: 40 EUR/mtl.
Küche: 50 EUR/mtl. (mit Kochinsel sowie E-Geräten)
Für die PV-Anlage (inkl. Speicher): 150 EUR / mtl. (Stromertrag PV-Anlage erfolgt zugunsten Mieter)
Nebenkosten: 130 EUR/mtl. (u.a. für Müll, Grundsteuer, Versicherungen) + Wasser/Abwasser
Fertigstellung/Bezug: voraussichtlich 11/2025

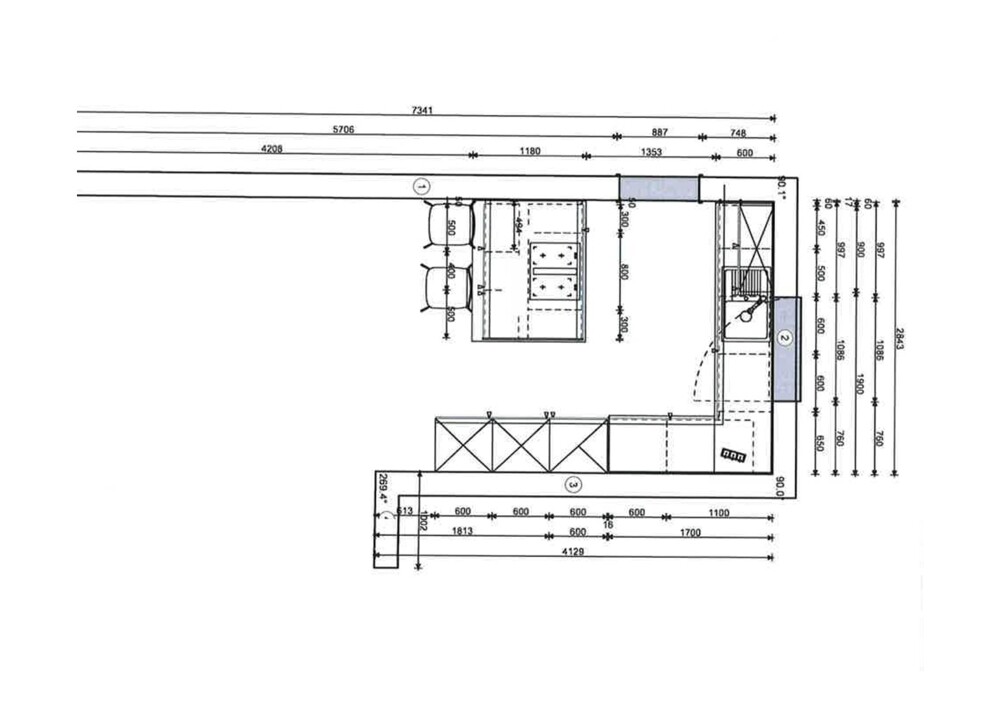
RAUMAUFTEILUNG:
ERDGESCHOSS:
– großzügige Diele mit guten Stellmöglichkeiten
– helles Gäste-WC mit Fenster
– praktischer Abstellraum
– Technik- und Hauswirtschaftsraum mit Anschluss für Trockner und Waschmaschine
– Technikraum mit Zugang nach Außen
– großer offener Wohn- / Essbereich mit offener Wohnküche (vermieterseitig inkl. Einbauküche mit Kochinsel)
– große Terrasse (mit Sichtschutz zur Nachbar-Doppelhaushälfte)

OBERGESCHOSS:
– helles, großzügiges Kinderzimmer mit bodentiefen Fenstern (könnte bei Bedarf auch unterteilt werden)
– Schlafzimmer mit guten Stellmöglichkeiten
– helles Bad mit Badewanne und Dusche sowie 2 Waschbecken
– Flur

DACHGESCHOSS
– Studio mit Zugang zur Dachterrasse
– Duschbad mit WC
– traumhafte Dachterrasse mit herrlichem Fernblick

Einzelgarage und Carport (abgetrennt) mit E-Antrieb

Heizung: Luftwärmepumpe mit separatem Zähler

Nutzungsart
Wohnen
Baujahr lt. Energieausweis
2025

Die idyllische Gemeinde Glashütten im oberfränkischen Landkreis Bayreuth bietet eine hervorragende Lebensqualität, besonders für Familien. Eingebettet in die malerische Natur der Region, verbindet Glashütten ländliche Ruhe mit einer guten Anbindung an die Stadt Bayreuth, die nur ca. 13 Kilometer entfernt ist. Hier genießen Sie die Vorzüge eines ruhigen, familienfreundlichen Umfelds, ohne auf die Annehmlichkeiten der Stadt verzichten zu müssen.

Für Familien mit Kindern bietet die Gemeinde alles, was für eine gute Erziehung und eine unbeschwerte Kindheit wichtig ist. In unmittelbarer Nähe befindet sich ein moderner Kindergarten, der den Kleinsten eine liebevolle Betreuung und eine optimale Förderung bietet. Die örtliche Grundschule ist ebenfalls schnell erreichbar und ermöglicht den Kindern einen kurzen Schulweg.

Ein besonders hervorzuhebender Vorteil für junge Familien ist der neue Spielplatz, der in der Nähe der Immobilie gelegen ist. Hier können sich Kinder austoben und neue Freundschaften knüpfen. Die ruhige und sichere Umgebung schafft eine perfekte Atmosphäre für das Aufwachsen.

Darüber hinaus profitieren die Bewohner von einer sehr guten Infrastruktur: Geschäfte des täglichen Bedarfs, Ärzte und ein umfangreiches Freizeitangebot sorgen dafür, dass es an nichts fehlt. Die gute Anbindung an die A9 ermöglicht zudem eine schnelle Erreichbarkeit von größeren Städten und Regionen.

Glashütten ist der ideale Ort für Familien, die das Leben auf dem Land schätzen und gleichzeitig auf eine gute Anbindung und vielfältige Freizeitmöglichkeiten nicht verzichten möchten.

Änderungen und Zwischenvermietung vorbehalten.

Gerne vereinbaren wir einen Besichtigungstermin – sprechen Sie uns einfach an!

Die Angaben in diesem Exposé erfolgen unter Ausschluss jeglicher Haftung, soweit diese nicht auf einer vorsätzlichen oder grobfahrlässigen Pflichtverletzung beruhen. Unser Angebot erfolgt gemäß der uns vom Eigentümer erteilten Informationen, jedoch ohne Gewähr für die Richtigkeit und Vollständigkeit. Schadensersatzansprüche sind uns gegenüber, auch bei eigenen Fehlern, mit Ausnahme von grob fahrlässigem oder vorsätzlichem Verhalten, ausgeschlossen. Eine Weitergabe an Dritte ist nicht gestattet.

Ihre Ansprechpartnerin

Leni Nicklas

Frau Leni Nicklas

Alexander Thiem Immobilien

Tel.:
+49 9279 / 97 77 461
E-Mail:
nicklas@thiem-immobilien.de

Bahnhofstraße 25
95490 Mistelgau

Ihre Anfrage zu der Immobilie „Großzügige DHH mit PV-Anlage, Einbauküche, 2 Bädern, großem Grundstück und Fernblick!“ (24-191_F)

* Pflichtfelder